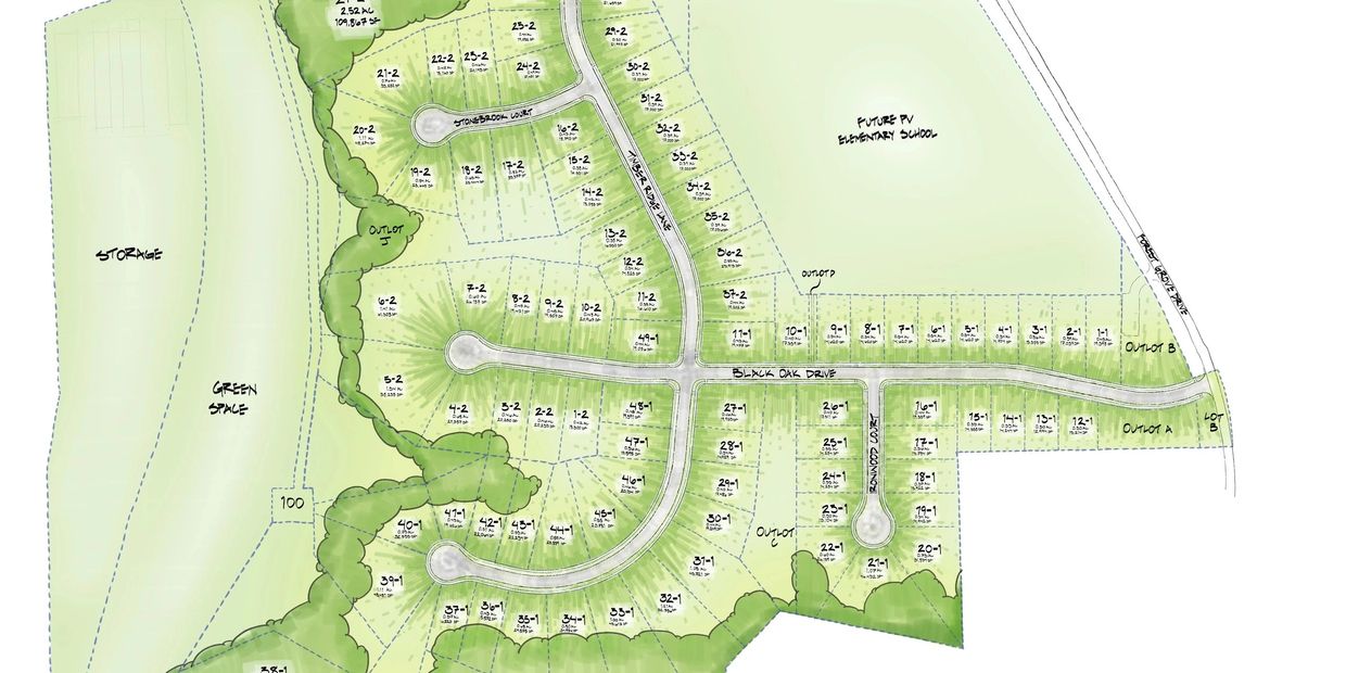
Pleasant Valley Schools. Aspen Homes. Prime Bettendorf Location.
Pleasant Valley Schools. Aspen Homes. Prime Bettendorf Location.

We use cookies to analyze website traffic and optimize your website experience. By accepting our use of cookies, your data will be aggregated with all other user data.